Оборудование для чистых помещений
Проходные шлюзы для чистых помещений с вертикальным обдувом AS1400-V (KLC)
Новые шлюзы для чистых помещений с вертикальным потоком воздуха
Обычно в шлюзах для чистых помещений обдув производится из форсунок , расположенных по двум сторонам. Это служит причиной завихрений потоков воздуха. Такая схема обдува дает не самый лучший эффект при удалении пыли и при этом есть возможность попадания взвешенных частиц в чистое помещение.
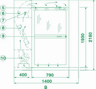
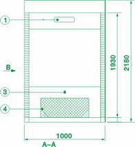
Новые шлюзы для чистых помещений созданы с применением схемы вертикального обдува, снабжены вентилятором, HEPA фильтром, форсунками и сестемомй рециркуляции. Вентилятор обеспечивает высокую скорость потока воздуха, который проходит через HEPA фильтр. Обдув производится из 16 форсунок, расположенных сверху. Скорость потока 25 м/с. Затем отработанный воздух удаляется через пол шлюза. Таким образом происходит циркуляция воздуха. При применении вертикального потока, обдув происходит во всех точках шлюза, удаление пыли происходит быстро и эффективно.
Мы можем изготовить проходные шлюзы для чистых помещений под конкретные требования заказчика с необходимыми характеристиками.
|
Шлюз с традиционной схемой обдува
|

Шлюз с вертикальной схемой обдува |
| Модель |
AS1400-V1
|
AS1400-V2
|
AS1400-V3
|
| Кол-во проходящих чел. за цикл |
1
|
2
|
3
|
|
Внешние размеры (ДхШхВ), мм
|
1400*1000*2180
|
1400*2000*2180
|
1400*3000*2180
|
|
Внутреннее пространство (ДхШхВ), мм
|
790*930*1930
|
790*1930*1930
|
790*2930*1930
|
|
Размер префильтра, мм
|
775*380*17
|
775*380*17
|
775*380*17
|
|
Размер HEPA фильтра, мм
|
610*610*120
|
610*610*120
|
610*610*120
|
|
Электропитание вентилятора
|
380В/50Гц/1100Вт
|
380В/50Гц/1100Вт
|
380В/50Гц/1100Вт
|
|
Производительность вентилятора, м3/ч
|
1300
|
1300
|
1300
|
|
Скорость вентилятора, об/мин
|
2800
|
2800
|
2800
|
| Уровень шума (dB) |
<62
|
<62
|
<62
|
|
Электропитание дезинфециркющего источника света
|
220В/50Гц/40Вт
|
220В/50Гц/40Вт
|
220В/50Гц/40Вт
|
| Число форсунок |
16
|
32
|
48
|
| Эффектвность HEPA фильтра |
>99.99%, 0.3 мкм
|
>99.99%, 0.3 мкм
|
>99.99%, 0.3 мкм
|
| Скорость воздушного потока, м/с |
>25
|
>25
|
>25
|

Низ шлюза |
Верх шлюза
|

Проходной шлюз для чистых помещений, AS1400-V, шлюз для чистых помещений, UNIX Instruments, Оборудование для чистых помещений, материалы для чистых помещений, чистые помещения, чистое помещение, чистая комната, Проходной шлюз для чистых помещений, AS1400-V, шлюз для чистых помещений, UNIX Instruments, Оборудование для чистых помещений, материалы для чистых помещений, чистые помещения, чистое помещение, чистая комната, Проходной шлюз для чистых помещений, AS1400-V, шлюз для чистых помещений, UNIX Instruments, Оборудование для чистых помещений, материалы для чистых помещений, чистые помещения, чистое помещение, чистая комната